大家好,本人代号汤姆猫,坐标帝都,北漂十几年,终于购买了一套在帝都特有的房子类型,叫共有产权房。因为贫穷,所以决定从零开始学习家装知识。

2月14日是门头沟共有产权房西山印嘉园(京能西山印)摇号的日子。项目位于北京市门头沟区,门头沟自然环境优越,2020年还入选第二批国家全域旅游示范区。但是距离市区确实还挺远的,有车一族合适。
不过价格在这里放着呢,北漂想要安家的真心合适。不适合通勤但是很适合养老的生活。

约80㎡ | 两室两厅一卫
中户南北通透,边户三面采光,日常通风不在话下;卫生间干湿分离;卧室/玄关/厨卫均配置高效集约的收纳空间,清洁起来so eaey~
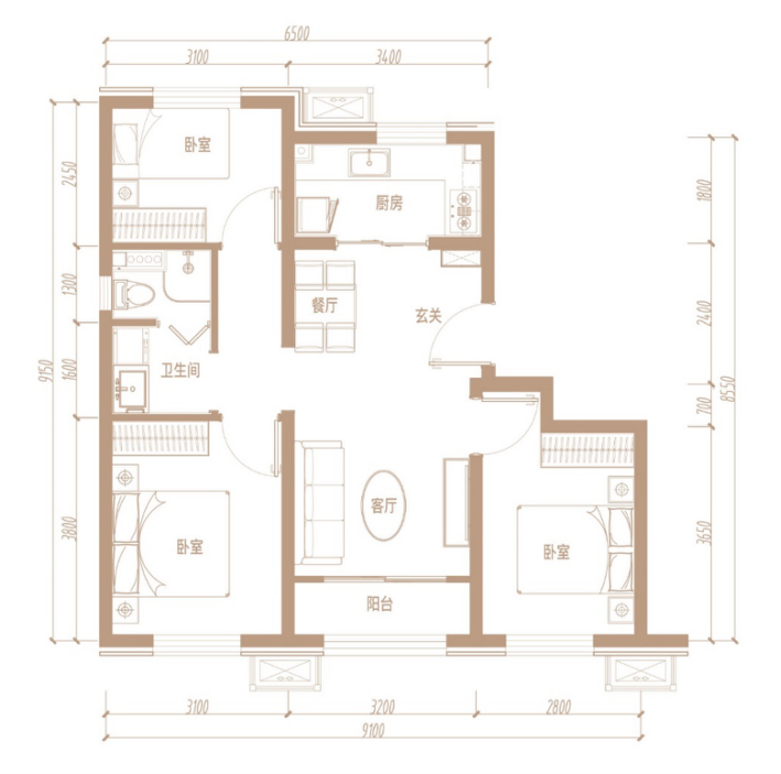
约89㎡ | 三室两厅一卫
9.1米大尺度南向采光面,阳光洒满生活空间;客厅、双卧南向,美好风景开窗即享;边户270°三面采光;客厅约28平米;餐客厨联动,尽享烹饪乐趣;宽敞客厅直通阳台,视野开阔、空间灵动,非常适合家里亲友多,经常在家开party的友友~
约115㎡ | 四室两厅两卫
本项目自2022年11月2日至11月16日进行申购,最终确认申购家庭约5976户,通过购房资格审核的家庭共计4877户。其中,京籍家庭3148组,非京籍家庭1729组。
先进行的第一组选房家庭的摇号,第一组是门头沟区户籍和在门头沟区工作的京籍家庭。第一组通过资格审核的家庭共488户。:23
非京籍无房家庭分为第三组、第四组和第五组,也进行分别摇号,产生摇号结果。第三组是工作在门头沟的特定企业,可以理解成优先组,这里就不对特定企业做罗列了。
第四组家庭是非特定企业的在门头沟的非京籍摇号家庭,总共79户,不多。
第五组家庭,就是城六区的非京籍家庭了,主要是在东城区、西城区、朝阳区、海淀区、丰台区、石景山区工作的非京籍家庭。
完整的摇号结果大家可以留意官方网站发布的公告。摇号结束之后,意味着选房就是马上的事情了,根据经验,可能半个月之内就要选房了。
